Крепление панелей в коньке крышы

Крепление карниза

Угловое крепление

Крепление панели крыши к стене

Крепление панелей к фундаменту

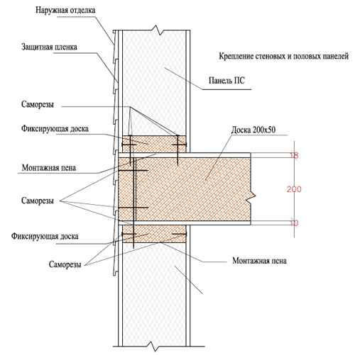
Крепление стеновых и половых панелей

Крепление двух панелей к балке ЛВЛ


Наверх